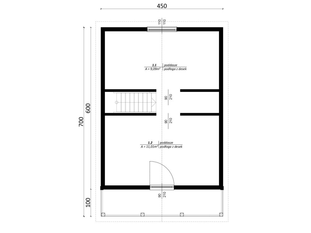
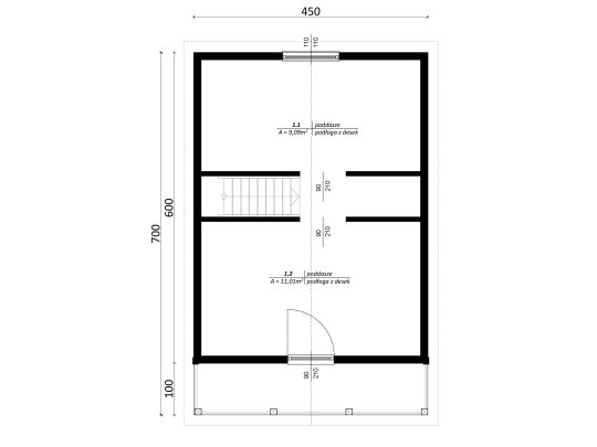
Summer house Dąb B 4.5 x 8m + 2.5m terrace 36m2
Technical data
- Construction
- Pine and spruce wood
- Dimensions
- 5 x 7m + 2,5m terrace
- Building area
- 35m2
- Facade
- Facade board with tongue and groove
- Impregnation
- DrewnoChron® agent
Available impregnation colors:

- Roof type
- Gable
- Roof cover
- Coloured roofing underlay or shingle or metal tile
Roofing underlay colors:

Shingle colors:

Metal tile colors:

- Tilt angle of the roof
- 55⁰
- Support posts
- 4x9cm in spacing every 50cm
- Floor
- Made of wooden floorboards with a thickness of 21 mm
- Joists
- 4x9cm in spacing every 70cm
- Door
- 2 doors of solid wood with latch and lock 80 x 200
- Window
- 7 windows with combined glass and shutter 105x90cm, 100x90cm, 90x65cm, 80x140cm balcony window
- Board thickness
- 26mm
- Other
- drabinoschody
- Informacje

- Condition
- New
More information
Available colors of PVC veneer:

Available versions:

For an additional fee you can order:
- foundation (price is negotiable)
- Transport and assembly
- Architectural and construction planning
Notice:
The client is responsible for preparing the subsoil.
We build concrete buildings on concrete blocks or a foundation. The builder is responsible for the production of the foundation or the purchase of the concrete blocks (the number of which is determined by the contractor during the order).

Manufacturer: Miedziński

Product made to order in Poland.
Manufacturer:
Miedziński Grupa Kapitałowa Sp. Z.o.o.
Kowale 21
42-274 Konopiska Poland
NIP: 573-284-64-43
Also check