Dom drewniany Kasztanowiec D 6x9m 54m2
Dane techniczne
- Konstrukcja
- Drewno sosnowe i świerkowe
- Wymiary
- 6 x 9 m
- Powierzchnia zabudowy
- 54m2
- Powierzchnia użytkowa
- 46m2
- Powierzchnia podłogi
- 46m2
- Elewacja
- Deska elewacyjna łączona na pióro wpust
- Impregnacja
- Preparatem DrewnoChron®
Dostępne kolory impregnatu:

- Typ dachu
- Dwuspadowy
- Pokrycie dachu
- Papa podkładowa kolorowa lub gont lub blachodachówka
Dostępne kolory papy:

Dostępne kolory gontu:

Dostępne kolory blachodachówki:

- Kąt nachylenia dachu
- 25⁰
- Słupy nośne
- 4x9cm w rozstawie co 50cm
- Wysokość
- 2,20m ściany boczne / 3,85m w kalenicy
- Podłoga
- z desek podłogowych drewnianych o grubości 21mm
- Legary
- 4 x 9cm w rozstawie co 70cm
- Drzwi
- 4 drzwi z pełnego drewna na klamkę i zamek 80x205cm, 80x200cm
- Otwór okienny
- 4 okna z szybą zespoloną i z okiennicą 135x110cm, 1 x 50x50cm
- Informacje
Dostępne kolory okleiny PCV:

- Stan
- Nowy
Więcej informacji
Planujesz budowę i cenisz sobie ekologiczne, naturalne i sprawdzone rozwiązania? Odkryj nasze domy drewniane gotowe, które łączą tradycyjną, solidną technologię z nowoczesnym komfortem i szybkością realizacji. Model "Kasztanowiec" to doskonały przykład solidnego domu drewnianego, który dzięki precyzyjnie przygotowanym elementom powstaje znacznie szybciej niż dom murowany. Może stać się Twoją całoroczną, zdrową siedzibą lub luksusowym, przestronnym domkiem letniskowym.
Wybierając domki drewniane od Miedziński, kupujesz bezpośrednio od producenta, co eliminuje marże pośredników i gwarantuje najwyższą jakość oraz atrakcyjną cenę. Używamy starannie selekcjonowanego drewna, a każda konstrukcja jest precyzyjnie dopracowana w naszym zakładzie. Zyskujesz nie tylko oszczędność czasu i pieniędzy, ale przede wszystkim dom o zdrowym mikroklimacie, piękny, naturalny wygląd i trwałość na pokolenia. Spełnij marzenie o własnym domu w otoczeniu przyrody w inteligentny sposób.
Koszt montażu obliczany jest indywidualnie w zależności od wybranych opcji dodatkowych.
Dostępne warianty:

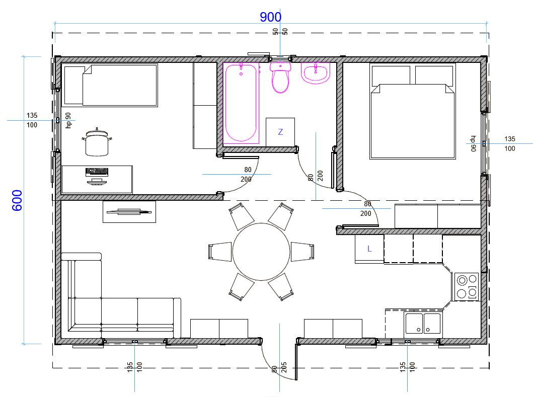
Rzuty rozkładu pomieszczeń:
Wersja A

Wersja B

Wersja C

Ogłoszenie nie stanowi oferty w rozumieniu art. 66 § 1 Kodeksu Cywilnego
Uwaga:
Przygotowanie podłoża leży po stronie Inwestora.
Budynki gospodarcze ustawiamy na bloczkach betonowych lub na fundamencie. Wykonanie fundamentu bądź zakup bloczków betonowych (ilość określa wykonawca na etapie zamówienia) leżą po stronie Inwestora.
Dostępne kolory okleiny PCV:

Producent: Miedziński

Produkt wykonywany na zamówienie w Polsce.
Producent:
Miedziński Grupa Kapitałowa Sp. Z.o.o.
Kowale 21
42-274 Konopiska Polska
NIP: 573-284-64-43
Zobacz również